Take-Offs, Line Drawings, Sourcing & More!

Saving You
Time & Money


Takeoffs

~

Estimates

~

Bids

~

Finding Parts

~

New Vendors

~

Identification

~

Research

~

Utility Requirements

~

Customized Solutions

~

And More

~

Takeoffs ~ Estimates ~ Bids ~ Finding Parts ~ New Vendors ~ Identification ~ Research ~ Utility Requirements ~ Customized Solutions ~ And More ~

Take off from
‍ ‍Take-Offs!

Complete Attention to Detail is what we strive for.

With our Complete Take-Offs we include:

  • Categories

  • Materials

  • Quantities

  • Descriptions

  • Notes On Material (where needed)

  • Costs (PPE & Total)

  • Pricing References

  • & More!

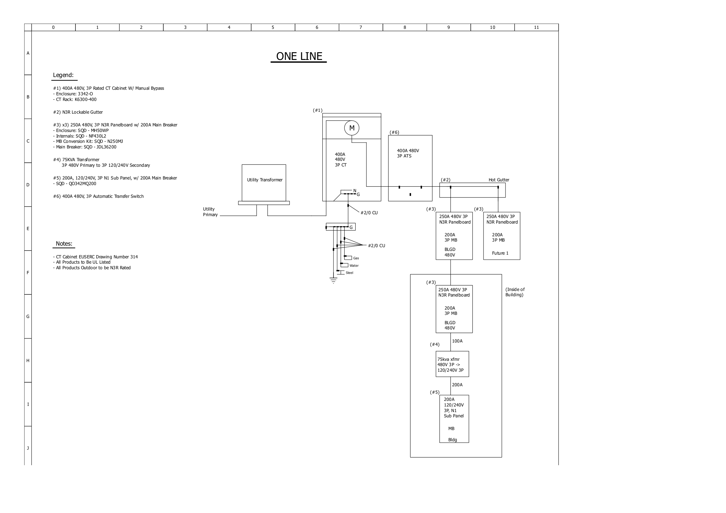
Professional Line Drawing Services

Having trouble with your utility company & their requirements? Send us your rough drafts and we’ll work up beautiful plans to submit for approval

Line Drawing Includes:

  • Up to a 10:1 Scaled Line Drawing

  • Detailed List of Parts Used

  • Spec Sheets Included

  • Compiled into a PDF

  • Includes 3 FREE revisions

Starting as Low as $99

With a decade in the electrical field between supply houses, warehouse management & Ordering we have connections and sources to find virtually any electrical component (120-600V) you’ll need

On demand purchasing agents make projects quick and easy knowing you’re getting the best costs out there. With a 3 quote minimum, we check several sources to make sure we’re getting you the best deals possible

Take off from
‍ ‍Take-Offs!

Complete Attention to Detail is what we strive for.

With our Complete Take-Offs we include:

  • Categories

  • Materials

  • Quantities

  • Descriptions

  • Notes On Material (where needed)

  • Costs (PPE & Total)

  • Pricing References

  • & More!

Material Sourcing

Take-Off Services

Take off from doing Take-Offs! We’ll provide everything you need to get your job bid correctly.

  • Complete Material Breakdown (Including Reference Notes)

  • PDF including General & Specific Notes Pertaining to the Job

  • Excel Breakdown of materials used

  • Estimating available if requested

Starting as Low as $99

Checklist on a clipboard with five checked items.

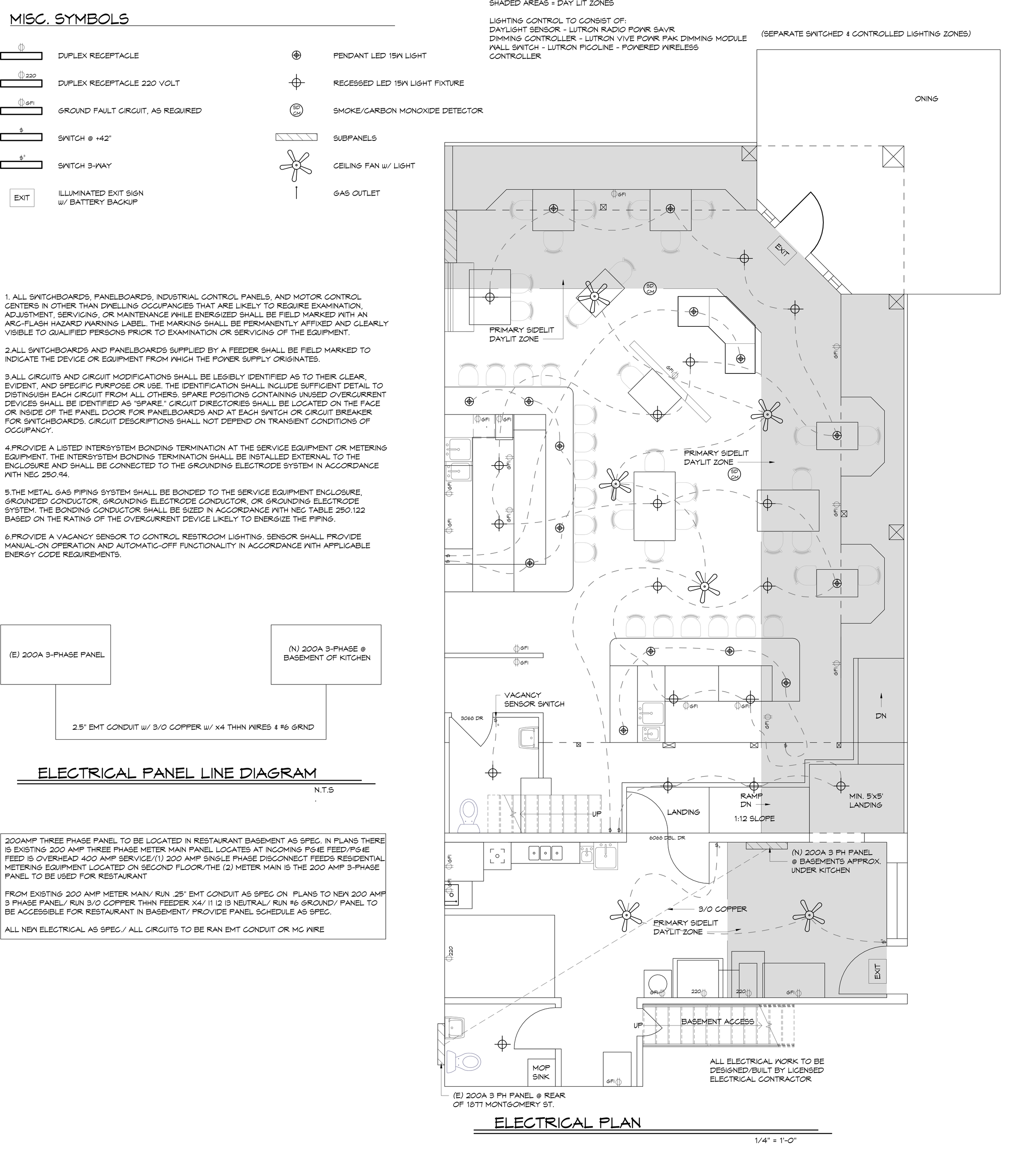
Professional Line Drawing Services

Do you want your jobs to be approved quicker? Do you want that next level of professionalism? We’ll produce up to a 24” x 36” detailed Line Drawing for you to submit.

Line Drawing Includes:

  • Up to a 10:1 Scaled Line Drawing

  • Detailed List of Parts Used

  • Spec Sheets Included

  • Compiled into a PDF

  • Includes 3 FREE revisions

Starting as Low as $99

Line drawing of a document, a pencil, a ruler, a triangle, and a gear indicating design or technical planning.

Material Sourcing

Need better prices, can’t find something, or just don’t have time?
We have the resources needed to find what you need.

  • Where to buy

  • Price & Availability

  • Contacts

  • Quote Number (If applicable)

  • Spec Sheets (If needed)

Starting as Low as $49

Magnifying glass icon

Custom Inventory Solutions

We can provide you with a Cost Effective, Easy to Use, & Personalized Inventory App for your business.

  • Material Tracking

  • Job Tracking

  • Automated Stock Lists

  • Receive PO’s and Materials

Starting as low as $35/mo After Initial Setup

Shopping cart icon with a box inside.
Infographic titled 'How It Works' with three steps. Step 1: Submit Your Request, depicting a checklist icon. Step 2: We Review & Confirm, showing a document with a checkmark. Step 3: You Get Results, with a box icon. Describes process for submitting a project request, review, and receiving results.
Infographic titled 'How It Works' illustrating three steps: submit request with form, review and confirm via quick outreach, receive completed drawings or research findings, with icons of a clipboard, magnifying glass, and delivery box.

There’s no reason to wait

Talking to us is free! There’s no downsides to a conversation.

Let us know what you need done, we’ll reach out to you and get all the details so we can get to work.

Allow us to handle what you need, so you can get back do doing what’s important to you.

Not Only Will We Get The Job Done.

We’ll Get Time & Savings Back For You.

Your Time is Limited, Hire Experience and Get your Time Back.
We’ll take care of what’s Needed to Keep your Jobs Running on time and under budget.

Commonly Asked Questions

  • On average most requests can have a straightforward answer in 1-2hrs. Some can be as quick as 15 minutes!

    However, more complex or restrictive requests can take longer. 48hrs+

    When a request is made and details are finalized, we'll do our best to provide an ETA on project completion.

  • This depends on the type of request made. It can range from:

    • PDF’s

    • Excel Files

    • Word Documents

    • Program Download Link

    • Direct email with any relevant information to your request.

    All of this is discussed before starting any type of work. We’ll make sure to get you any and all information needed to get your job done as easy and quickly as possible.

  • When it comes to Electrical parts:

    Yes, our business is in Low Voltage residential and commercial electrical. (120-600V Range is a good rule of thumb). We don't deal with any utility or automotive electrical parts.

    As far as Requests go:

    We’ll try and help with virtually anything, if you have a problem let us know and we’ll do our best to help.

    We’re constantly expanding our capabilities, and if you need help with something we haven’t done before, we’ll let you know and most of the time work at a discount for the experience.

  • Making requests is simple!

    Reach out using the form above and we’ll contact you for more details on what you need.

    If you would like to reach out directly, you can email: Chase@SparkPartsConsulting.com

  • Even if we can’t help, we’ll do our best to find someone who can.

    At the end of the day, we want you to be successful, regardless of if you’re working directly with us or not

  • Due to the high specificity of the work, and clear communication before hand, there will be no refunds issued once a job is complete.

    If a project needs to be stopped before completion, a partial refund may be possible at the discretion of Spark Parts Consulting.

A circular logo with a lightning bolt in the center, surrounded by the text 'Spark Parts Consulting' at the top and bottom, with two electric plug icons on each side, and 'Est. 24' on the right side of the lightning bolt.